
Emergency Housing Solutions
Scalable housing systems designed for rapid deployment, ideal for temporary or permanent solutions after natural disasters or in areas with housing shortages.
The Challenge
Natural disasters and housing shortages create an urgent need for fast, reliable, and scalable housing solutions.
Traditional construction methods often fail to respond in time due to on site delays, cost overruns, and logistical limitations, making it difficult to deliver efficient solutions in critical situations.
The Solution
Our Emergency Housing system is based on off site construction, allowing units to be built in a controlled environment and then transported and installed quickly on location.
Pre designed models ready for rapid deployment.
These solutions are designed to serve as:
• Emergency temporary housing
• Transitional housing
• Permanent housing for small scale developments
THE SYSTEM
Each project is planned as a complete system, including:
• Site layout design
• Infrastructure coordination including water, sewer, and utilities
• Unit placement adapted to site topography
• Fast installation logistics

Available Models
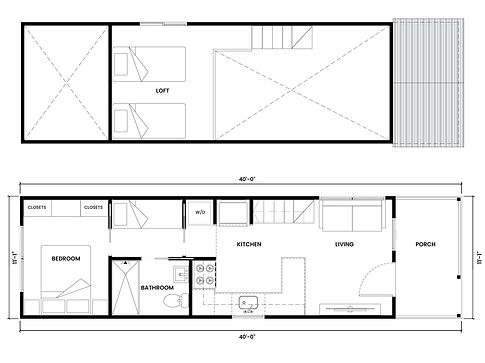
Emergency Model – Forest
• Compact and efficient design
• Ideal for one or two occupants
• Fast production and deployment


Emergency Model – Atlantic
• Designed for small families
• Flexible layout
• Suitable for temporary or permanent use




















